如月不動産 > 新天地テナント

新天地テナント 3号室

物件紹介

2駅利用できる立地となっていて、アクセスが良いです☆空いている駐車場があるので、近くに車を駐車できます☆賃料は27.5万円です☆敷金不要なので、初期費用削減につながります☆車をお持ちの方にオススメ(^_^)

賃料/坪単価
275,000 /
2.45万円
坪数/面積
11.23坪 /
37.14㎡
所在階
1階
管理費・共益費
33,000円
保証金
82.5万円
礼金
1ヶ月
  • お問い合わせ
  • 検討リストに追加
POINT
駅徒歩10分以内 3駅以上利用可 最上階 2沿線利用可 敷金不要

PHOTO GALLERY

印刷する
  • 【外観】 | 新天地テナント

    【外観】

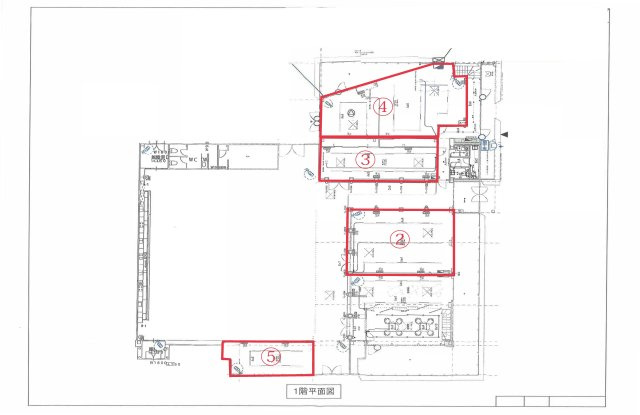
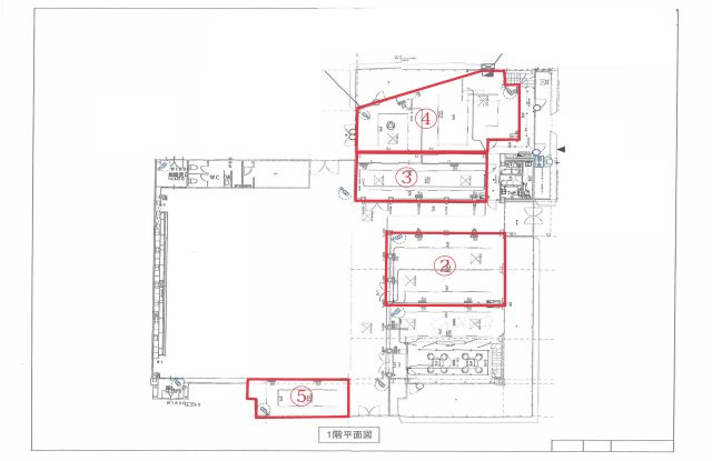
  • 【間取り】 | 新天地テナント | 一階各フロア配置

    【間取り】一階各フロア配置

  • 【外観】 | 新天地テナント
  •  | 新天地テナント | 二階フロア配置

※写真や図と実際の現状とが異なる場合は現状を優先させていただきます。

設備条件

  • 事務所可
  • 公営水道
  • 浄化槽排水
  • 電気有
  • トイレ共同

募集中物件情報

所在階 賃料/坪単価 管理費 敷金/礼金/保証金/償却/敷引 坪数/面積 詳細 検討リスト
1 38.5万円 / 19896.64円 33,000円 0ヶ月/ 1ヶ月/ 115.5万円/ 100.00%/ - 19.35坪 / 63.99㎡ 詳細を見る 追加する
1 45万円 / 18781.3円 33,000円 0ヶ月/ 1ヶ月/ 135万円/ 100.00%/ - 23.96坪 / 79.22㎡ 詳細を見る 追加する
1 22万円 / 30428.77円 33,000円 0ヶ月/ 1ヶ月/ 66万円/ 100.00%/ - 7.23坪 / 23.92㎡ 詳細を見る 追加する
1 45万円 / 18233.39円 36,000円 0ヶ月/ 1ヶ月/ 135万円/ 100.00%/ - 24.68坪 / 81.61㎡ 詳細を見る 追加する
1 85万円 / 11782.64円 33,000円 0ヶ月/ 1ヶ月/ 255万円/ 100.00%/ - 72.14坪 / 238.50㎡ 詳細を見る 追加する

お問い合わせ

株式会社如月不動産

0586-64-8555

  • 〒493-0001
  • 愛知県一宮市木曽川町黒田字中沼北ノ切37 新天地 1号室

9:00~17:00  定休日:土・日・祝日

物件お問い合わせ

無料!カンタン会員登録!お得情報満載!!
最新物件、未公開物件情報が閲覧いただけます!

新規会員登録

物件概要

【店舗事務所】 物件番号:86348179 情報更新日:2026年04月06日 次回更新予定日:2026年04月20日
所在地 愛知県一宮市木曽川町黒田字中沼北ノ切37
交通
坪数(面積) 11.23坪(37.14㎡)
賃料/坪単価 27.5万円/2.45万円 管理費・共益費 33,000円
敷金/礼金/保証金 0ヶ月/1ヶ月/82.5万円 償却/敷引 100.00%/-
更新料 3.3万円 権利金/雑費 -/-
造作譲渡金 - 駐車場/月額料金 空有(5台)/5,500円 (税込)
保険加入/料金 有/- 保険名/保険期間 あいおい損害/-
保証人代行義務/利用料 必加入/ USEN保証 保証会社 その他
保証会社詳細 - 向き -
築年月(築年数) 1986年 9月 (築39年) 契約期間 3年
種別/構造 店舗事務所/鉄骨造 用途地域 無指定
部屋/所在階/階建 3号室/1階/1階建 総戸数 7戸
現況/引渡時期 空家/相談 取引態様 一般媒介
物件番号 86348179 取引条件の有効期限 2026年04月20日
設備条件
  • 事務所可
  • 公営水道
  • 浄化槽排水
  • 電気有
  • トイレ共同
備考 ◆貸室内はすべて貸主備品となります。

◆毎月の共益費には共用部電気と共用部水道、共用部セキュリティ込。

◆各フロア面積は平面図によるものであり、登記記載はありません。

◆営業可能時間:朝9時~夜22時まで。

◆家賃保証会社:USEN保証
 
◆火災保険:加入必須 ※原則:管理会社指定。

◆24時間営業、深夜業種、風営法関連業種は不可。

◆専有部分のライフライン等は各入居者にて精算。
取扱会社
  • 株式会社如月不動産
  • 愛知県一宮市木曽川町黒田字中沼北ノ切37 新天地 1号室
  • TEL:0586-64-8555
  • 愛知県知事 (2) 第24010号
  • 社団法人愛知県宅地建物取引業協会、社団法人宅地建物取引業保証協会
QRコード

QRコード

このQRコードを読み取ることで、スマホでも物件情報を確認できます。

地図

※地図上に表示される物件の位置は付近住所に所在することを表すものであり、実際の物件所在地とは異なる場合がございます。

物件お問い合わせ

必要項目の入力

0/0
必須項目完了

確認画面へ
お進み下さい

0/0
必須項目完了

確認画面へ
お進み下さい

要望

任意

お名前

必須

メールアドレス

必須

内容

任意

こちらは一般の方向けのお問合せフォームです。営業のお問合せはご遠慮くださいますようお願い申し上げます。

利用規約及びプライバシーポリシーを必ずお読みください。左記内容に同意いただいた場合は、確認画面へお進み下さい。

未入力項目があります

この物件を見た人はこちらの物件も見ています

一宮市森本3店舗・事務所

一宮市森本3店舗・事務所の画像

賃料
9.6万円
種別
店舗事務所
住所
愛知県一宮市森本3丁目
交通
妙興寺駅
徒歩21分

NOKOTANHANARE2号室

NOKOTANHANARE2号室の画像

賃料
5.9万円
種別
店舗事務所
住所
愛知県一宮市木曽川町玉ノ井字大縄場九ノ切
交通
玉ノ井駅
徒歩11分

NOKOTANHANARE3号室

NOKOTANHANARE3号室の画像

賃料
5.5万円
種別
店舗事務所
住所
愛知県一宮市木曽川町玉ノ井字大縄場九ノ切
交通
玉ノ井駅
徒歩11分

NOKOTANHANARE4号室

NOKOTANHANARE4号室の画像

賃料
3.9万円
種別
店舗事務所
住所
愛知県一宮市木曽川町玉ノ井字大縄場九ノ切
交通
玉ノ井駅
徒歩11分

お問い合わせ

株式会社如月不動産

会社画像

0586-64-8555

9:00~17:00  定休日:土・日・祝日

  • 〒493-0001
  • 愛知県一宮市木曽川町黒田字中沼北ノ切37 新天地 1号室

物件リクエスト

トップへ戻る